Expansión planta de autopartes Testori

Cliente: Testori S.R.L.

Año de proyecto: 2015

Sup. terreno: 2,3Ha / Sup.cubierta: 10.300m2

Programa funcional: Nave de producción, depósito de matrices y dispositivos, depósito de insumos y productos terminados, oficinas administrativas y operativas, unidad central de servicios, servicios para el personal

Servicios brindados: Plan maestro, Definición de técnicas y procesos operativos logísticos, Programa de implementación

Equipo de Proyecto: Bernardo Korochinsky, Delfina Herren, Romina Ramat


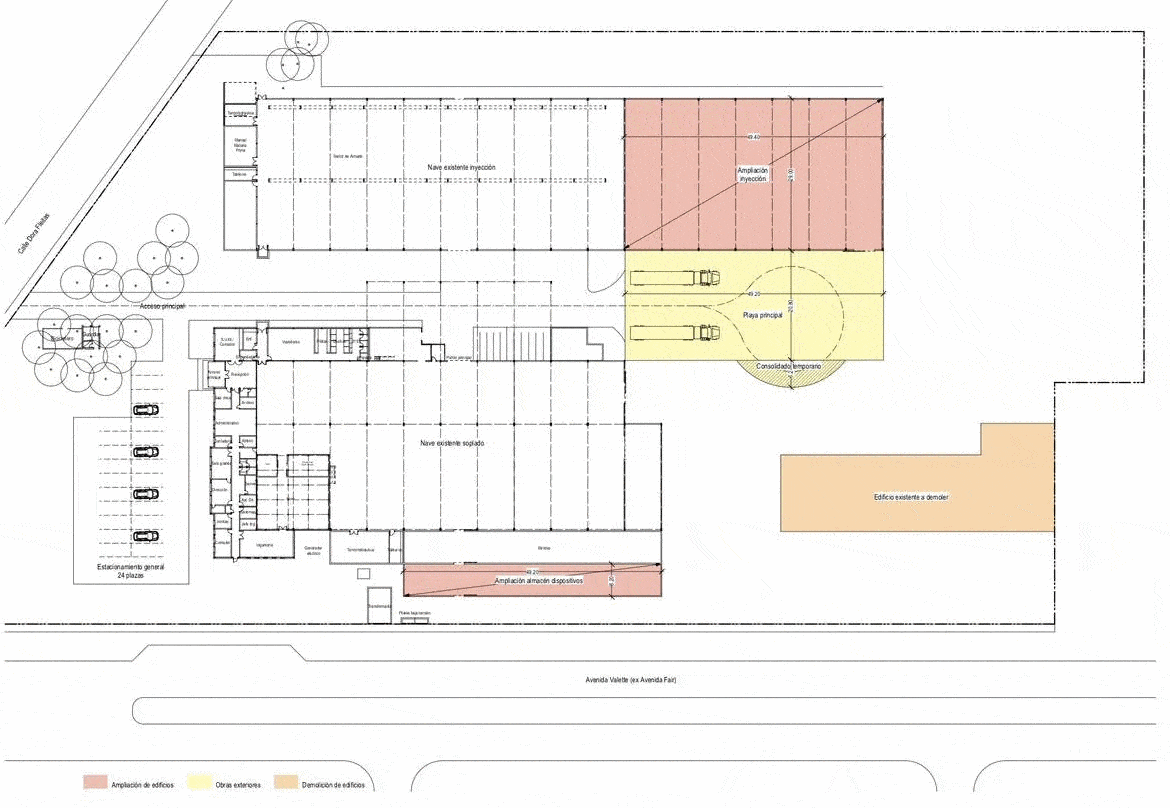
Esta planta tuvo un crecimiento por varias etapas conformando 2 núcleos separados por una playa de maniobras, cada uno destinado a procesos productivos diferentes. Al alcanzarse los límites del terreno y ante una perspectiva de crecimiento de los volúmenes y despachos “just-in-time” a las terminales automotrices, se hizo necesario un replanteo general del layout con un cambio sustancial del sistema vial y la creación de un almacén central para insumos y productos terminados que liberase superficie útil en las naves de producción.

Arkia228-Animations01.gif

Se definió hacer un ingreso vehicular y de personal nuevo en el extremo opuesto de la planta, con un nuevo edificio de servicios para el personal y estacionamiento. Se completó el camino de ronda y se liberó la zona central del predio para instalar un almacén centralizado con acceso directo desde ambas naves, las que se ampliaron al máximo posible.

Arkia228-Animations02.gif

Se estudió cuidadosamente el proceso de transición desde la situación actual hasta la máxima expansión, cuidando de no interrumpir el proceso productivo en ningún momento. Se analizaron las configuraciones de las instalaciones de servicio, las estructuras y los flujos de materiales para garantizar el crecimiento ordenado. De esta forma surgió un programa de 30 pasos de construcción/traslado/demolición que debía implementarse en estricta secuencia.

Arkia228-Drawings01.jpg

A nivel edilicio, la intervención mayor fue la creación de un almacén central para insumos y productos terminados paletizados, que cuenta con un área de staging y una nueva playa de carga cubierta para camiones side-loader.